Matapos ang paggawa at pananaliksik at pag -unlad, inilunsad ng Ruichen Seals ang dalawang static na produkto ng selyo, J03 at J04, sa bago at lumang mga customer. Parehong natatanging pangunahing mga produkto ng selyo.
Ang J03 at J04 ay mabibigat na duty bidirectional inner diameter static seal. Ang J03 ay tiyak na inangkop sa posisyon ng hydraulic cylinder piston, habang ang J04 ay idinisenyo para sa hydraulic cylinder head. Ang lugar ng pakikipag -ugnay sa sealing ng pareho ay maaaring matalinong nababagay sa presyon, na nagbibigay ng mga propesyonal at mahusay na mga solusyon para sa iyong mga hydraulic cylinder static sealing na mga problema, tinitiyak ang matatag na operasyon nang walang pagtagas.
Mga Tampok at Aplikasyon ng Produkto:
Mga kalamangan:
(1) Mataas na paglaban sa presyon
(2) Mataas na katatagan
(3) Mapapalitan ng mga O-singsing at O-singsing na may mga singsing na pagpapanatili
(4) Simple at maginhawa
(5) Malakas na paglaban sa pagsusuot
Materyal
| Pangunahing sealing materyal | Daluyan ng paghahatid | Saklaw ng temperatura ℃ | Presyon ng trabaho | Pinakamataas na agwat ng extrusion | ||
| HPU Polyurethane | Mineral na langis | -30 | - | +100 | 600bar | FS0.4mm |
| Fluid/tubig na batay sa tubig | +5 | - | +50 |
|
|
|
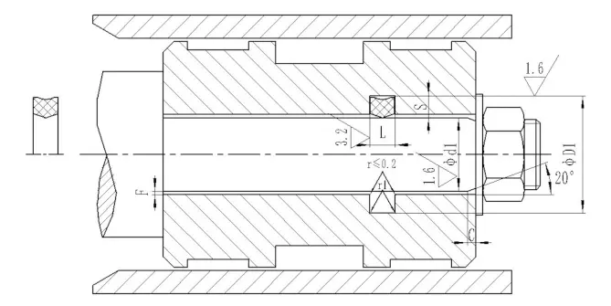
| Chamfers at Arcs | Tolerance | Tapos na ang ibabaw | ||||||
| S≤ | 4 | 5 | 5.6 | 6.8 | μmra | μMrt | ||
| R1 | 0.2 | 0.2 | 0.4 | 0.4 | FD1 | H8 | ≤1.6 | ≤10 |
|
|
|
|
|
|
FD1 | F7 | ≤1.6 | ≤10 |
|
|
|
|
|
|
L | +0.3 -0 | ≤3.2 | ≤16 |
Materyal
| Pangunahing sealing materyal | Daluyan ng paghahatid | Saklaw ng temperatura ℃ | Presyon ng trabaho | Pinakamataas na agwat ng extrusion | ||
| HPU Polyurethane | Mineral na langis | -30 | - | +100 | 600bar | FS0.4mm |
| Fluid/tubig na batay sa tubig | +5 | - | +50 |
|
|
|
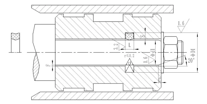
| Chamfers at Arcs | Tolerance | Tapos na ang ibabaw | ||||||
| S≤ | 4 | 5 | 5.6 | 6.8 | μmra | μMrt | ||
| R1 | 0.2 | 0.2 | 0.4 | 0.4 | FD1 | H8 | ≤1.6 | ≤10 |
|
|
|
|
|
|
FD1 | F7 | ≤1.6 | ≤10 |
|
|
|
|
|
|
L | +0.3 -0 | ≤3.2 | ≤16 |

Address
No.1 Ruichen Road, Dongliuting Industrial Park, Chengyang District, Qingdao City, Shandong Province, China
Tel